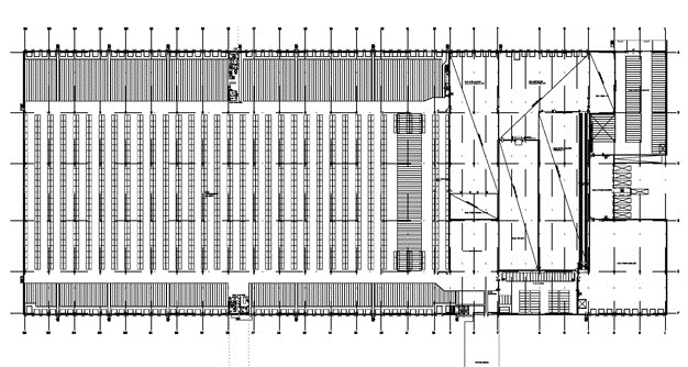
Logistički centar u Križu

2
Logistički centar u Križu 1
Logistički centar u Križu 2
Projekt: Logistički centar u Križu
Lokacija: Križ, Hrvatska
Razdoblje: 2006 – 2009
Opis posla: projektiranje
Faze: idejni, glavni i izvedbeni projekt
Površina: 46,200m²



Povratak na popis referenci