Proizvodno-poslovna građevina “Univerzal”

2
Proizvodno-poslovna građevina “Univerzal” 1
Proizvodno-poslovna građevina “Univerzal” 2
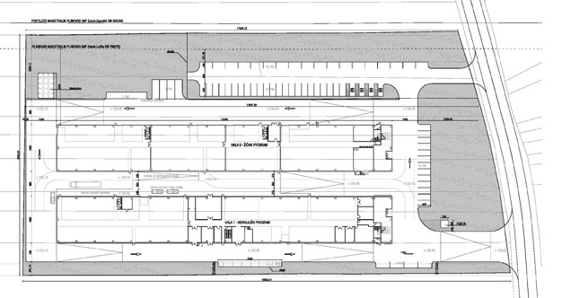
Projekt: Proizvodno-poslovna građevina “Univerzal”
Lokacija: Bistra, Hrvatska
Razdoblje: 2008 – 2010
Opis posla: projektiranje
Faze: idejni projekt
Površina: 7,800m²



Povratak na popis referenci