Tiskara Radin

2
Tiskara Radin 1
Tiskara Radin 2
Projekt: Tiskara "Radin"
Lokacija: Sveta Nedelja, Hrvatska
Razdoblje: 2007 – 2009
Opis posla: projektiranje, projektantski nadzor
Površina: 22,800m²
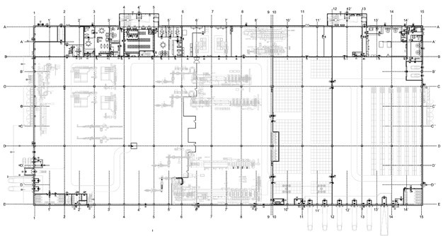
Execution of engineering for a printing plant Radin, Sveta Nedelja. Daily newspaper production up to 400.000 copies, 600 kilograms of paint daily, recycling 60 tons of paper daily.
Total area of the printing plant Radin in Sveta Nedelja is approx. 25,500 m². Printing plant consists of a several parts, such as printing plant, warehouse area for paper in roll, color mixing area, warehouse for printing ink and solvent-based paint, transformer station, warehouse for flammable liquids, offices laid out over 2 storeys. Starting-up of the plant was in August 2008.

The engineering services consist of:
• preparing a service index and carrying out the call for tender
• preparing of recommendation for the award of contract
• construction and installation supervision
• project management


Povratak na popis referenci